产品描述Product description
管道工厂预制详图转化软件
摘要:管道工厂预制详图转化软件是一款现有国际化管道预制加工的设计软件,它针对管道的二次开发设计,可直接导入对接的IDF文件。生成管线3D模型图,并直接生成施工单位所需的安装单线图,及预制管道图,并可导出管线、管段、焊缝、材料、长度等信息。
产品型号:SmartPlantSpoolgen
一、 版本:2014R1
二、 性能特点:Intergraph鹰图软件产品;具有English、中文两种语言(自由切换);自身独有软件运行平台;可方便地导入IDF(ISOGEN Data File,来自Intergraph PDS and AVEVA PDMS )、PCF(Piping Component File ,来自Intergraph SmartPlant 3D and CADWorx),实现与设计院/工程公司的无缝数据对接,生成3D单线图模型。设置现场口位置后,可生成安装所需的单线图和管道预制所需的管段图,并可导出管线、管段、焊缝、材料、长度等信息
优势点:
不再是头疼事(详图设计)
轻松获取(单线图、管段图)
管道预制转化设计之利器
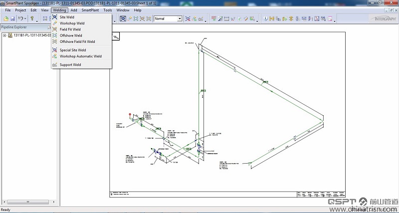
打开软件界面

导入IDF中间文件
生成管线3D模型

确定现场口位置

生成安装单线图

生成预制管段图

无缝对接(管理系统软件)
与国际工程公司深度合作的必备软件
性能特点


